Einfamilienhaus in Potsdam

[DAS OBJEKT IST VERMIETET]

Gewerbefläche in prominenter Lage in der Potsdamer Innenstadt

 

Daten

Standort Gutenbergstraße Potsdam Innenstadt            
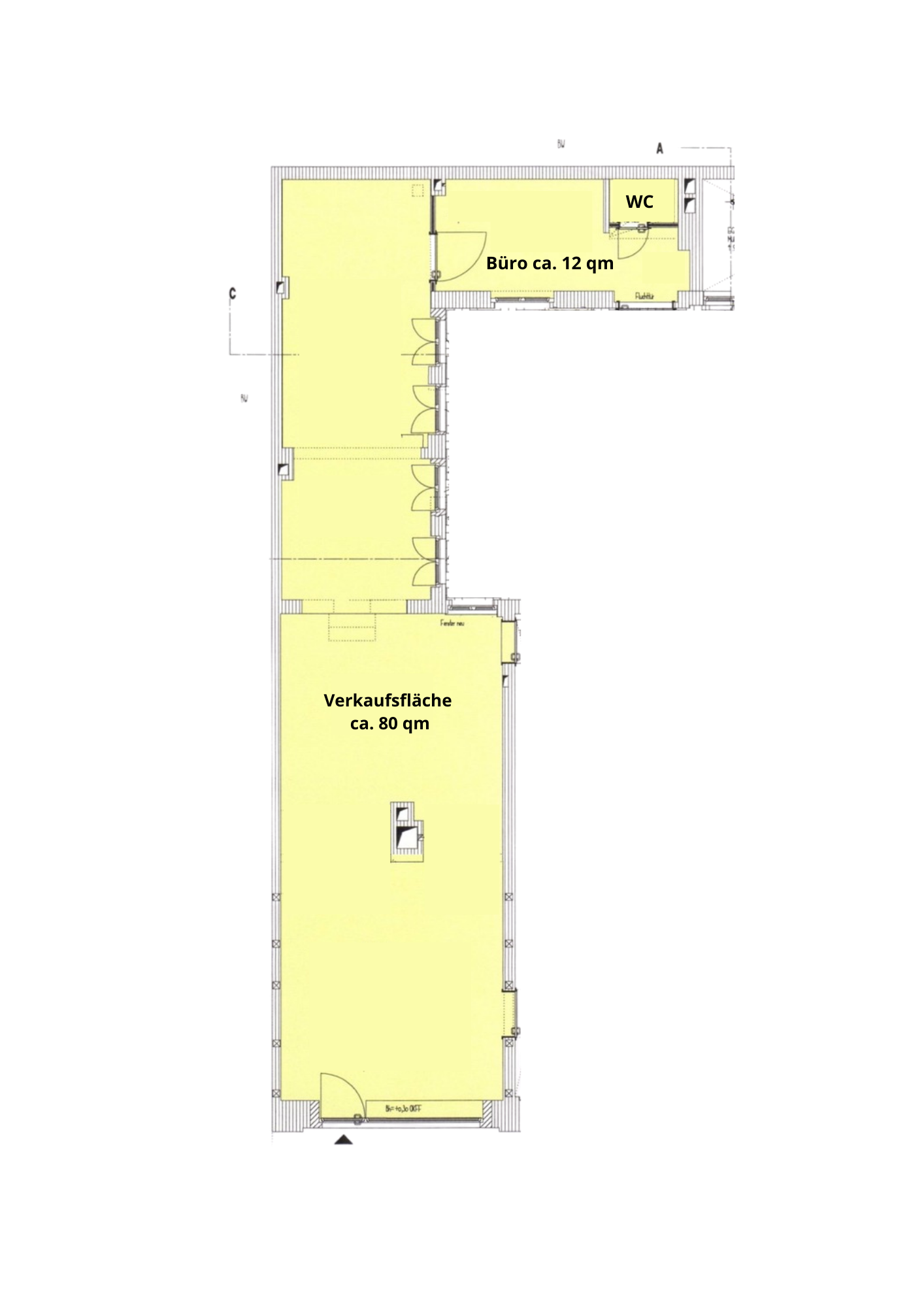
Ladenfläche ca.92 m² 
Nettokaltmiete 2.640,- €
Nebenkosten 150,- €
   
   
   

[DAS OBJEKT IST VERMIETET]

Diese Ladeneinheit besticht durch das viele Tageslicht, dass für eine helle Verkaufsfläche sorgt. Das durchgängige große einladende Schaufenster dieser Ladeneinheit im Erdgeschoss ist einmalig in der Potsdamer Innenstadt. Hier läßt sich den Kunden viel zeigen und große Aufmerksamkeit gewinnen. Und im langestreckten Teil des Ladengeschäftes gelangt durch die Fenster zum Innenhof Tageslicht herein.
Diese helle Gewerbeeinheit verfügt über eine Verkaufsfläche von 80 qm, sowie einem 12 qm großen Raum, der als Büro und Ruheraum genutzt werden kann.

Bei Interesse und für weitere Informationen, buchen Sie bitte einen Telefon-Termin in unserem Online-Terminkalender. 

 

Lagebeschreibung:

Die helle Ladeneinheit befindet sich in der Gutenbergstraße im Zentum von Potsdam, dessen historisch gewachsene Lage heute wieder geprägt ist durch die sanierten historischen Häuser aus den Epochen der letzten Jahrhunderte.
Die Gutenbergstraße kann mit dem Auto befahren werden und sie ist nur wenige Gehminuten entfernt von der Brandenburger Straße, der Potsdamer Fußgängerzone, durch die viele Touristen und Einheimische flanieren. Die Umgebung ist geprägt von vielen kleinen Geschäften, Cafés und Restaurants.

Ausstattung:

Das gesamte Wohn- und Geschäftshaus wurde mit viele Liebe zum historischem Details vollständig kernsaniert. Und so ist diese Gewerbeeinheit mit einer zeitgemäßen elektrischen Versorgung ausgestattet, die Holzfenster mit Isolierglas sind im historischen Stil angefertigt. Im vorderen Bereich des Ladens wurde Dielenboden verlegt, der momentan schwarz lasiert ist, und im hinteren Teil sowie in den Nebenräumen ist eine schwarze Schieferfließe verlegt.

Die Provision für den Mieter beträgt zwei Monatsnettokaltmieten zzgl. der aktuellen gesetzlichen Umsatzsteuer.

Haftungsausschluss: Trotz sorgfältiger Bearbeitung von Daten und Informationen der Eigentümer können wir keine Haftung für die Richtigkeit der Angaben übernehmen. Bitte beachten Sie, dass es sich bei den Fotos um Aufnahmen aus dem Gewerbe der aktuellen Mieterin handelt. Alle Exposéangaben erfolgten nach bestem Wissen. Irrtum und Zwischenvermietung sind vorbehalten. Dieses Exposé dient Ihrer Erstinformation, als Rechtsgrundlage gilt allein der abgeschlossene Mietvertrag.