Die Wohnung befindet sich im schönen Babelsberg, dessen historisch gewachsene Lage heute wieder geprägt ist durch die sanierten Wohnhäuser aus der Gründerzeit.
verkauft

[DAS OBJEKT IST VERKAUFT]

Die Wohnung befindet sich im schönen Babelsberg-Nord in unmittelbarer Nähe zum Plantagenplatz, dessen historisch gewachsene Lage heute geprägt ist durch die sanierten Wohnhäuser aus der Gründerzeit.

Daten

Objekt Babelsberg Nord,14482 Potsdam
Wohnfläche 76,27 m²
Kaufpreis 241.700,00 €
Zimmer 2
frei ab nach Absprache
Hausgeld 235,73 €
Baujahr 1996

 

Besichtigungstermin buchen

[DAS OBJEKT IST VERKAUFT]

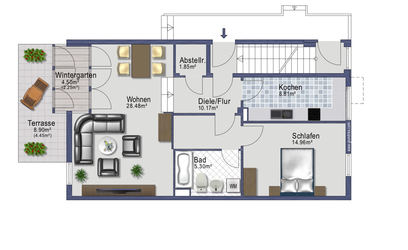
Als einzige Wohnung im ganzen Haus hat diese Wohnung einen separaten Hauseingang.
Der Hausflur wird von den anderen Bewohnern nur genutzt, um in den Keller zu gelangen.

Diese Wohnung ist ein Reich für sich - kommen Sie herein und erfreuen Sie sich!

Sie betreten die Wohnung und stehen in einer Diele, von der die geräumige Küche abgeht. Hier steht Ihnen eine sehr gepflegte Einbauküche zur Verfügung. Vom Flur geht nach Norden ausgerichtet das Schlafzimmer ab, das geräumig genug ist für ein Doppelbett und Stellfläche bietet für einen Kleiderschrank.
Das Wannenbad ist gefliest und verfügt über einen Stellplatz für die Waschmaschine.

Eine Abstellkammer gehört zu den praktischen Extras der Wohnung. Vom Flur geht es in das offene, großzügige Wohnzimmer. Es ist nach Süden ausgerichtet und bietet sehr viel Platz für vielfältige Wohnwünsche. Einzigartig an der Wohnung ist der helle Wintergarten mit der sich daran anschließenden Südterrasse. Das kleine, zugehörige Gartenstück lässt sich in ein eigenes Blumenparadies verwandeln.

Herz, was begehrst Du mehr!

Lagebeschreibung:

Die Wohnung befindet sich im schönen Babelsberg-Nord in unmittelbarer Nähe zum Plantagenplatz, dessen historisch gewachsene Lage heute geprägt ist durch die sanierten Wohnhäuser aus der Gründerzeit.

Die Infrastruktur ist hier hervorragend. Alle Geschäfte des täglichen Bedarfs sowie Post, Banken, Ärzte jeder Fachrichtung, Kino, Cafés und Restaurants unterschiedlichster kulinarischer Richtungen können Sie zügig erreichen. Eine Grundschule und ein Gymnasium befinden sich ebenfalls in der Nähe. Der S-Bahnhof Babelsberg, die Straßenbahnhaltestelle sowie die Bushaltestellen in der Karl-Liebknecht-Straße sind nur einige Gehminuten entfernt.

Sonstiges:

Da die Wohnung im Moment noch von einer Mietpartei bewohnt ist, bemühen wir uns um einen zentralen Besichtigungstermin. Gerne informieren wir Sie über den Zeitpunkt. Bitte teilen Sie uns mit, wenn Sie an der Besichtigung teilnehmen möchten.

Die Wohnung wird spätestens zum 01.04.2020 bezugsfrei sein. Alle weiteren Informationen dazu erhalten Sie von uns gerne in einem persönlichen Gespräch, rufen Sie uns einfach an.

Durch unseren Auftraggeber sind wir gehalten, Anfragen nur zu beantworten, wenn diese mit vollständiger Postanschrift und Telefonnummer gestellt werden. Wir bitten Sie dafür um Verständnis. Haftungsausschluss: Trotz sorgfältiger Bearbeitung von
Daten und Informationen der Eigentümer können wir keine Haftung für die Richtigkeit der Angaben übernehmen. Bitte beachten Sie, dass es sich bei den Fotos um Wohnbeispiele handelt. Alle Exposéangaben erfolgten nach bestem Wissen. Irrtum und Zwischenvermietung sind vorbehalten. Dieses Exposé dient Ihrer Erstinformation, als Rechtsgrundlage gilt allein der abgeschlossene Kaufvertrag.
Der Erwerb der Wohnung ist für den Käufer provisionspflichtig.

Folgen Sie uns auch auf Facebook & Instagram:
https://www.facebook.com/immobilienpotsdamkirschundkirsch/

https://www.instagram.com/kirsch_kirsch_immobilien/